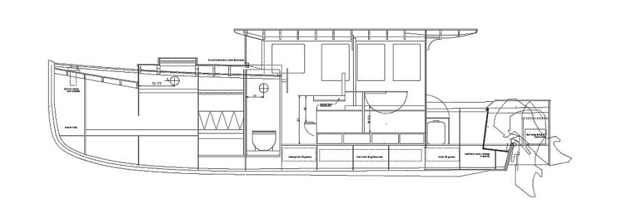
Mark has given permission to post the Olga 28 arrangements and profile drawings. So this is what Tardis will (should?) look like. Click on the pictures and they will get bigger.
When I write about “Station 5” or “Station 8.33” it means I’m talking about something at 5 or 8.3 feet from the bow. The boat is 28 feet long, so there are 28 little station marks on the drawing. Just count back to orient yourself.
If you really want to follow along, or are thinking about building any kind of large plywood boat, Mark sells very nice “study plans” in a PDF format for just $10 a set. There’s a link to his site to the right.




Leave a comment